Этот дом построен нами для заказчика, который хочет наиболее полно извлечь все плюсы из проживания за городом.
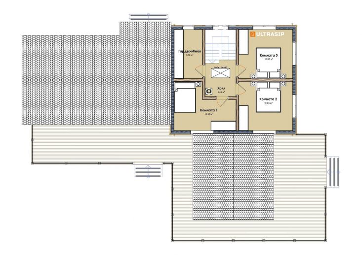
Итак - встроенная баня в отдельном крыле дома, зимний сад и громадная, площадью 70м2., терраса - это отличительные особенности этого дома.
В указанную стоимость вошел закрытый теплый контур - фундамент, теплый контур, кровля, терраса, окна, техническая дверь, и естественно сборка, доставка и все комплектующие.