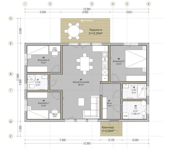
Проект дома с типично скандинавской организацией пространства. Кухня-гостиная приличного размера, три комнаты, два санузла, терраса и техпомещение "под газ" - все продумано и логично.
Стены – утепление 150 мм. ППС, нулевое/чердачное перекрытие – утепление 200 мм. ППС.
Внутренние перегородки – стойки 45х145, обшитые ОСП с одной стороны.
Весь пиломатериал на дом - камерной сушки влажностью 8-16%, простроган на четырехстороннем станке, антисептирован Неомид-430.
Все необходимые комплектующие для сборки дома (монтажная пена, ершеные гвозди для нейлера, конструкционные саморезы, перфорированный крепеж, клеи, подкровельная и ветровлагозащитная мембраны);
Фасад дома защищен ветровлагозащитной мембраной ULTRASIP® - Защита дома. (подарок от компании);
Оконные изделия REHAU (70 мм, 5 камер, двухкамерный энергосберегающий стеклопакет, армирование 2 мм, противовзломная ручка ROTO, фурнитура ROTO). Монтаж изделий по ГОСТу, с применением гидроизоляционной и пароизоляционной мембран.
Дверь входная металлическая с сейфовым замком (Китай), с замком и ручкой.
Настил из лиственничной террасной доски АБ вельвет, который закреплен специальным качественным и долговечным крепежом.
Доставка всех материалов по смете до места строительства. Дом собирается по проверенному энергоэффективному конструктиву компании ULTRASIP. Сборка дома ведется на ершеные гвозди, весь крепеж именитых европейских производителей.
Наш проектный отдел адаптирует типовой проект под ваш участок и под ваши желания. Это называется глубокая адаптация к участку, и мы делаем ее всегда. Фактически, любой строящийся нами дом - это новый индивидуальный проект.
- ежедневный фотоотчет со стройки.
- организация проживания рабочих (бытовка), подключение ее к электросети,
- организация биотуалета
Постоянный контроль качества сборки вашего дома специалистом нашего технадзора по специальным чек-листам на каждый этап. Общее количество контролируемых параметров – больше двухсот.
После окончания стройки ваш участок будет полностью очищен от строительного мусора.
Мы даем на построенные нами дома гарантию 5 лет. И это - реально действующая гарантия.
OPTIMUM
5.40 млн ₽
Дом полностью готов снаружи, впереди монтаж инженерных сетей и внутренней отделки.
Забивные ЖБ сваи, обвязанные пакетом из сухой, строганной и антисептированной доски 45х195;
Варианты, с доплатой:
- УШП (Утепленная Шведская Плита) с интегрированным теплым полом, коммуникациями, дренажом, ливневой канализацией, отделкой цоколя и утепленной отмосткой шириной 1м..
- УФФ (Утепленный Финский Фундамент) с интегрированным теплым полом, коммуникациями, дренажом, ливневой канализацией и утепленной отмосткой шириной 1м.
Стены – утепление 150 мм. ППС, нулевое/чердачное перекрытие – утепление 200 мм. ППС.
Внутренние перегородки – стойки 45х145, обшитые ОСП с одной стороны.
Весь пиломатериал на дом - камерной сушки влажностью 8-16%, простроган на четырехстороннем станке, антисептирован Неомид-430.
Все необходимые комплектующие для сборки дома (монтажная пена, ершеные гвозди для нейлера, конструкционные саморезы, перфорированный крепеж, клеи, подкровельная и ветровлагозащитная мембраны);
Фасад дома защищен ветровлагозащитной мембраной ULTRASIP® - Защита дома. (подарок от компании);
Окна "в пол" - REHAU GRAZIO цвета «антрацит» (70 мм, 5 камер, двухкамерный энергосберегающий стеклопакет, армирование 2 мм, противовзломная ручка ROTO, фурнитура ROTO). Монтаж изделий по ГОСТу, с применением гидроизоляционной и пароизоляционной мембран.
Дверь входная - Jeld-Wen Basic B0010, серая (цвет RR23), с замком и ручкой.
Настил из лиственничной террасной доски АБ вельвет, который закреплен специальным качественным и долговечным крепежом.
Доставка всех материалов по смете до места строительства. Дом собирается по проверенному энергоэффективному конструктиву компании ULTRASIP. Сборка дома ведется на ершеные гвозди, весь крепеж именитых европейских производителей.
Наш проектный отдел адаптирует типовой проект под ваш участок и под ваши желания. Это называется глубокая адаптация к участку, и мы делаем ее всегда. Фактически, любой строящийся нами дом - это новый индивидуальный проект.
- ежедневный фотоотчет со стройки.
- организация проживания рабочих (бытовка), подключение ее к электросети,
- организация биотуалета
Постоянный контроль качества сборки вашего дома специалистом нашего технадзора по специальным чек-листам на каждый этап. Общее количество контролируемых параметров – больше двухсот.
После окончания стройки ваш участок будет полностью очищен от строительного мусора
Мы даем на построенные нами дома гарантию 5 лет. И это - реально действующая гарантия.
Комплект водосточной системы Аквасистем и снегозадержания Борге, с доставкой и установкой
Фасад дома из скандинавской доски с поднятым ворсом, в заводских условиях окрашенной краской Тиккурила. Монтаж производится согласно финским типовым фасадным решениям.
В холле установлена лестница на чердак Fakro LWT Super Thermo
Деревянный каркас, окрашенный в цвет опорных конструкций. Ступени - террасная доска из лиственницы.
Постоянно действующая принудительная приточно-вытяжная, на комплектующих финской компании VILPE.
Вынесена на крышу, собрана из комплектующих финской компании VILPE.
PREMIUM
7.00 млн ₽
Дом полностью готов внутри и снаружи. Мебель вам нужно будет купить самостоятельно.
Забивные ЖБ сваи, обвязанные пакетом из сухой, строганной и антисептированной доски 45х195;
Варианты, с доплатой:
- УШП (Утепленная Шведская Плита) с интегрированным теплым полом, коммуникациями, дренажом, ливневой канализацией, отделкой цоколя и утепленной отмосткой шириной 1м..
- УФФ (Утепленный Финский Фундамент) с интегрированным теплым полом, коммуникациями, дренажом, ливневой канализацией и утепленной отмосткой шириной 1м.
Стены – утепление 150 мм. ППС, нулевое/чердачное перекрытие – утепление 200 мм. ППС.
Внутренние перегородки – стойки 45х145, обшитые ОСП с одной стороны.
Весь пиломатериал на дом - камерной сушки влажностью 8-16%, простроган на четырехстороннем станке, антисептирован Неомид-430.
Все необходимые комплектующие для сборки дома (монтажная пена, ершеные гвозди для нейлера, конструкционные саморезы, перфорированный крепеж, клеи, подкровельная и ветровлагозащитная мембраны);
Фасад дома защищен ветровлагозащитной мембраной ULTRASIP® - Защита дома. (подарок от компании);
Окна "в пол" - REHAU GRAZIO цвета «антрацит» (70 мм, 5 камер, двухкамерный энергосберегающий стеклопакет, армирование 2 мм, противовзломная ручка ROTO, фурнитура ROTO). Монтаж изделий по ГОСТу, с применением гидроизоляционной и пароизоляционной мембран.
Дверь входная - Jeld-Wen Basic B0010, серая (цвет RR23), с замком и ручкой.
Настил из лиственничной террасной доски АБ вельвет, который закреплен специальным качественным и долговечным крепежом.
Доставка всех материалов по смете до места строительства. Дом собирается по проверенному энергоэффективному конструктиву компании ULTRASIP. Сборка дома ведется на ершеные гвозди, весь крепеж именитых европейских производителей.
Наш проектный отдел адаптирует типовой проект под ваш участок и под ваши желания. Это называется глубокая адаптация к участку, и мы делаем ее всегда. Фактически, любой строящийся нами дом - это новый индивидуальный проект.
- ежедневный фотоотчет со стройки.
- организация проживания рабочих (бытовка), подключение ее к электросети,
- организация биотуалета
Постоянный контроль качества сборки вашего дома специалистом нашего технадзора по специальным чек-листам на каждый этап. Общее количество контролируемых параметров – больше двухсот.
После окончания стройки ваш участок будет полностью очищен от строительного мусора
Мы даем на построенные нами дома гарантию 5 лет. И это - реально действующая гарантия.
Комплект водосточной системы Аквасистем и снегозадержания Борге, с доставкой и установкой
Фасад дома из скандинавской доски с поднятым ворсом, в заводских условиях окрашенной краской Тиккурила. Монтаж производится согласно финским типовым фасадным решениям.
В холле установлена лестница на чердак Fakro LWT Super Thermo
Деревянный каркас, окрашенный в цвет опорных конструкций. Ступени - террасная доска из лиственницы.
Постоянно действующая принудительная приточно-вытяжная, на комплектующих финской компании VILPE.
Вынесена на крышу, собрана из комплектующих финской компании VILPE.
Разведено по дому, установлены водорозетки. Санузел подключен, установлен водонагреватель объемом 100л.
Стены и внутренние перегородки - шумоизоляция, гипсокартон Кнауф, шпаклевка, ошкуривание, обои под покраску, окраска в 2 слоя. Пароизоляция по наружным стенам. Пол - ламинат 32 класса прочности. Потолок - натяжной, матовый. Плинтуса пластиковые в цвет ламината. Межкомнатные двери с комплектом наличников и фурнитурой.
Выложен кафельной плиткой. Установлены и подключены душевая кабинка, унитаз, раковина и шкафчик с зеркалом.
Разведена по дому, подключен санузел. Выведена к заблаговременно установленной ЛОС Астра-5 и подключена. Установлен выход фанового стояка VILPE.