В очередной раз используем недешевый импортный крепеж.Отечественный держит меньшую нагрузку.
Начали монтаж чердачного перекрытия гаража из эксклюзивных панелей толщиной 324мм.
Они соединяются с помощью ЛВЛ-балки размером 51х300 мм.
При необходимости, балки сращиваются между собой специальным полиуретановым клеем.
Чердачное перекрытие гаража смонтировано, приступили к стенам и перегородкам второго этажа дома.
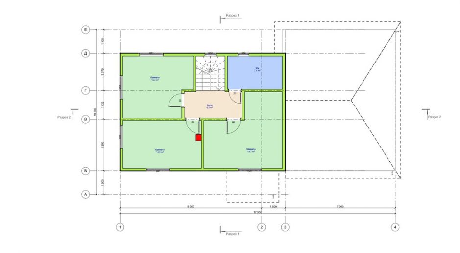
Видна планировка второго этажа.
Закончен монтаж теплого контура дома, стены нашей фирменной ветровлагозащитой.
Стропильная система дома готова. Приступили к ее монтажу на кровле гаража.
Хорошо видно соотношение размеров дома и примыкающего гаража.
На кровлю дома смонтирована металлочерепица и системы водостока и снегозадержания.
Закончили монтаж кровли на гараже.
Кровля готова.
Установлены окна, двери, гаражные ворота. Мусор собран и вывезен. Дом сдан.
Конструктив
Домокомплект из СИП панелей ULTRASIP® EXTRA (OSB-3 Калевала 12 мм, пенопласт ППС-17 высокой реальной плотности - 18 кг/м3).
Чердачное перекрытие из SIP панелей толщиной 324 мм, межэтажное - по каркасной технологии. Наружные стены из СИП-панелей 174 мм.
Перегородки внутри - каркасные, обшиты с одной стороны ОСБ 12 мм.
Пиломатериал, применяемый при сборке дома - камерной сушки влажностью 10-16%, простроган на четырехстороннем станке, и заранее, в цеху, обработан антисептиком.