Готовы стены дома из толстых и теплых панелей толщиной 224 мм.
На стены гаража установлены стропильные фермы заводской сборки.
Закат хорош!
Стропильные фермы дома заняли свое проектное положение.
Дом, гараж и красоты Валдая.
Длина скатов кровли - почти 20м.!
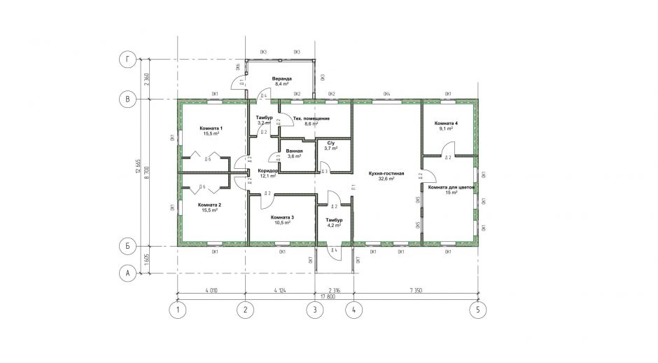
Конструктив
Стены наружные – СИП-панель ULTRASIP® EXTRA 224мм. с каркасом из сухого, строганного и антисептированного ; перегородки – каркас из металлопрофиля, обшитый гипсокартоном.;
Стропильная система – фермы заводского изготовления на металлозубчатых пластинах; утепление перекрытия – эковата 400мм.