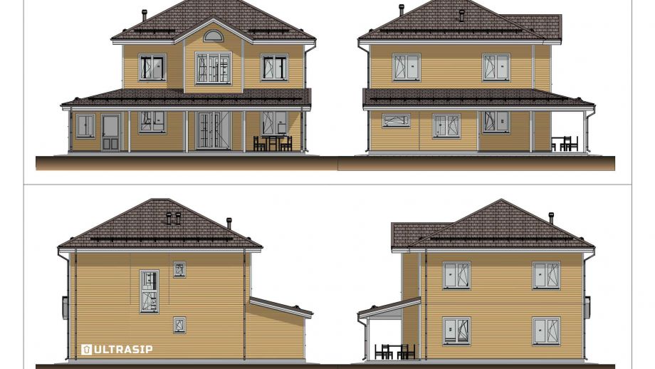
Этот дом - 28я реализация проекта Оптимум! Мы построили его в Павловске, под Санкт-Петербургом.
Этот мега-популярный проект очень продуман, и заслуженно получил признание наших, и не только наших заказчиков. По нему строят дома из разных материалов по всей России.
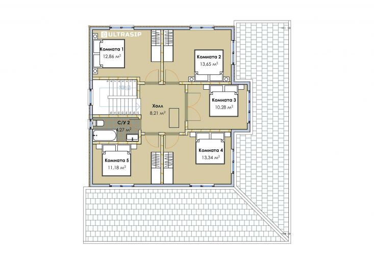
Идеальный набор помещений: 5 спален, 3 санузла, 2 гардеробных, кухня-гостиная в 43 м2. и терраса площадью 54 м2.
В указанную цену вошел закрытый теплый контур - теплый контур, кровля, окна, дверь, вентиляционный пакет УЛЬТРАВЕНТ, системы снегозадержания и водосточная. Стоимость УШП в указанную цену не вошла.