Мы построили этот двухэтажный дом в ближайшем пригороде Петербурга - в п.Белоостров.
Проект дома имеет отчетливые следы влияния популярной скандинавской школы домостроения.
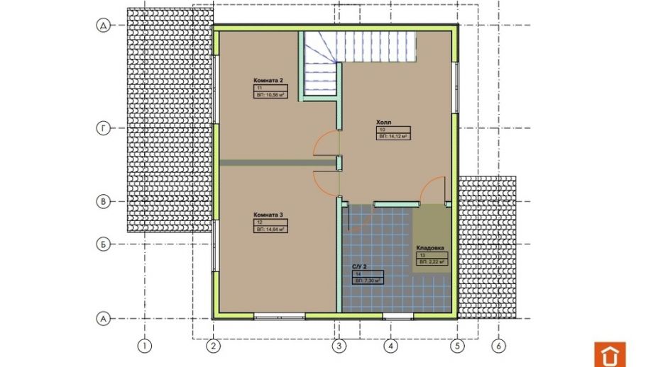
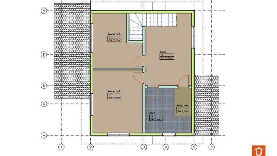
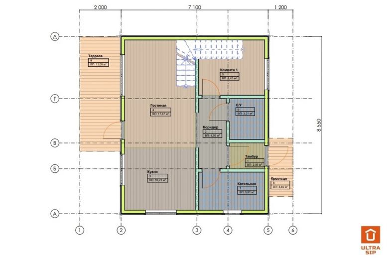
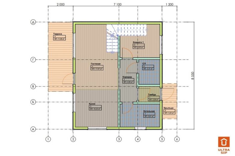
Домокомплект из СИП панелей ULTRASIP® EXTRA (OSB-3 Калевала 12 мм, пенопласт ППС-17 высокой реальной плотности - 18 кг/м3).